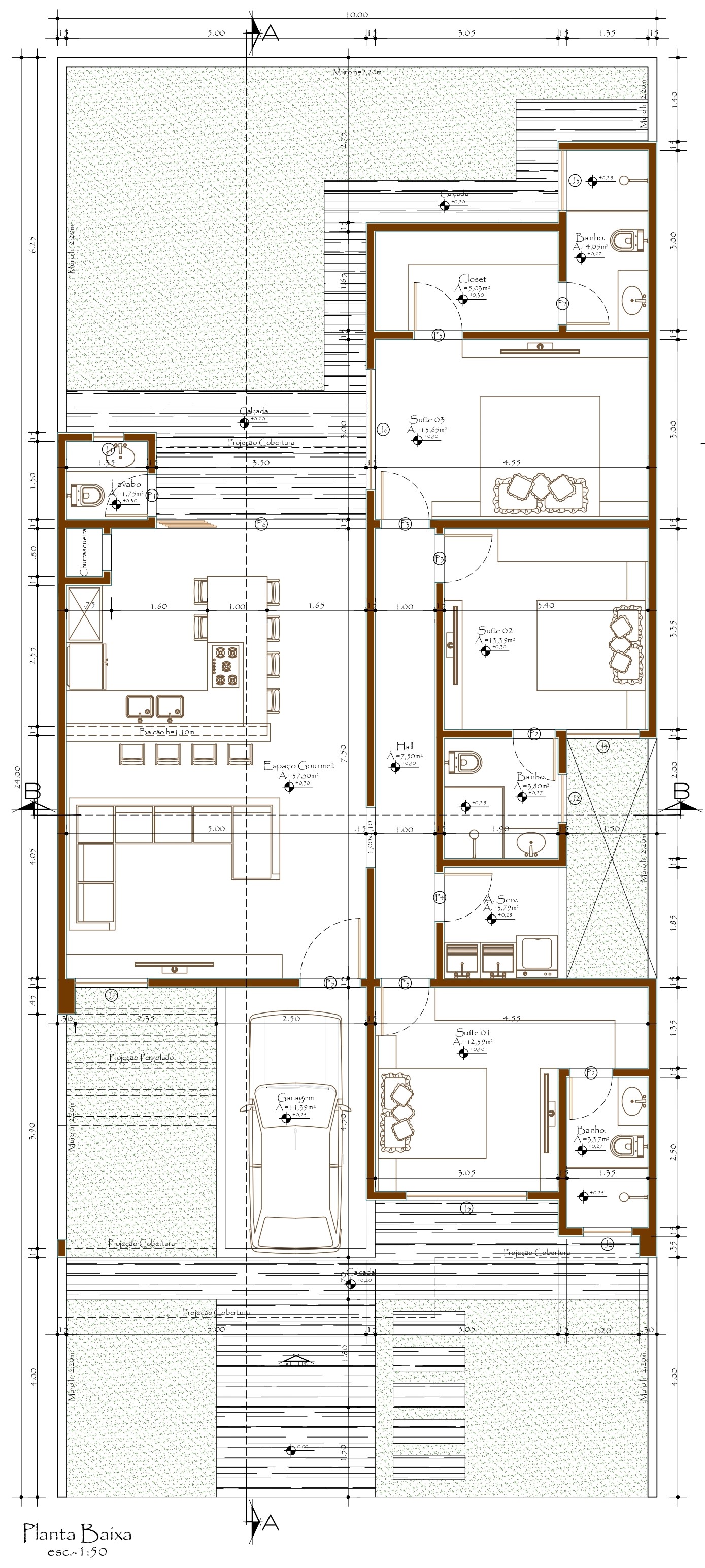
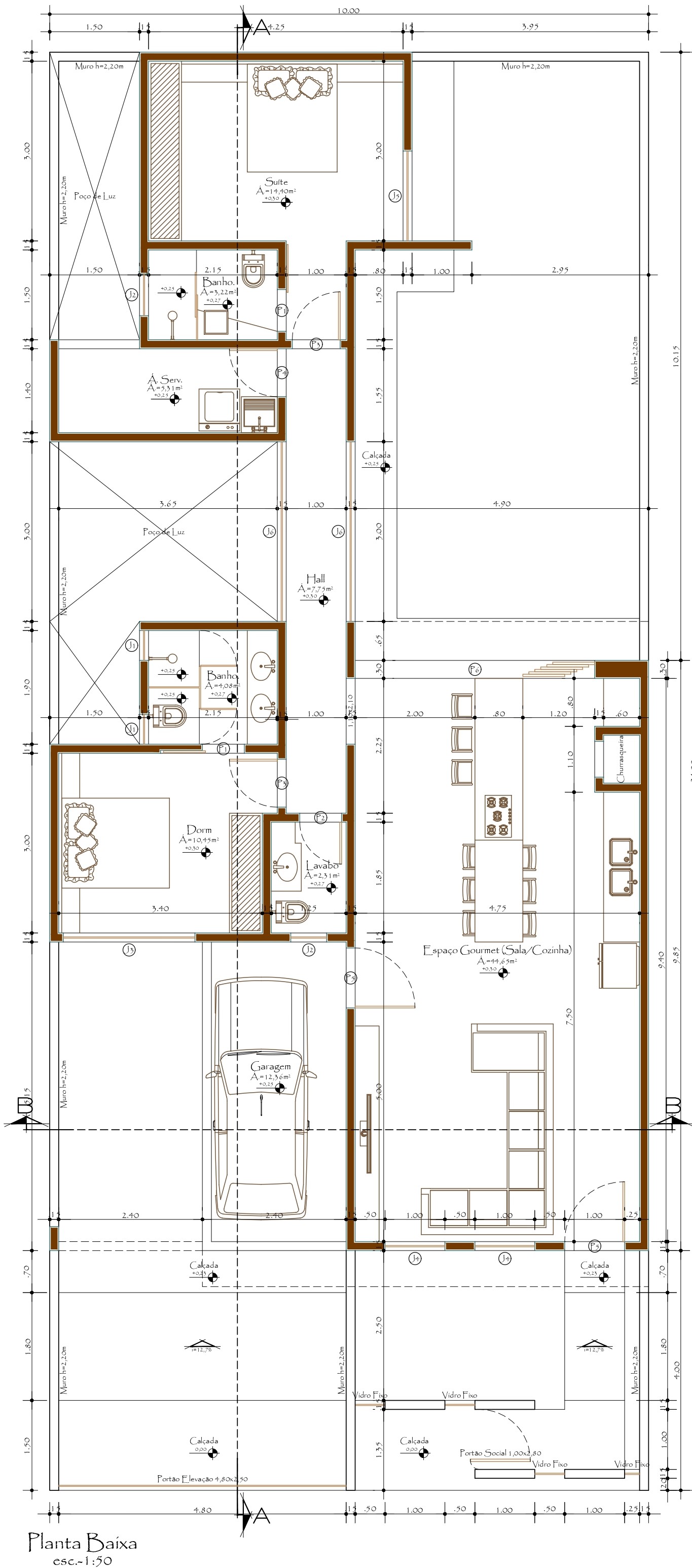
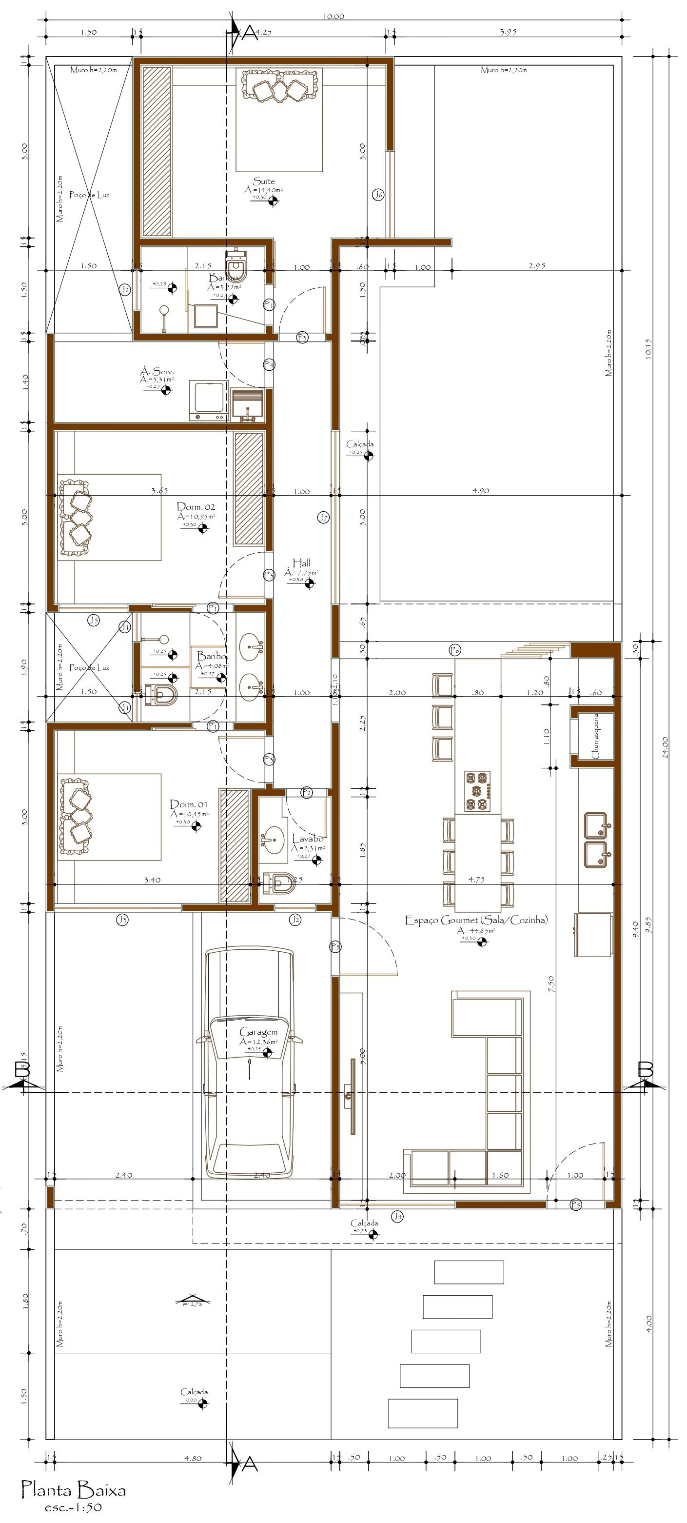
Casa com 130,42m² de area construida
138,44m² de area coberta
Toda na laje
Sala
Cozinha gourmet com churrasqueira e ilha na cozinha
3 quartos sendo 1 suite, e 2 demi suite
Lavabo
Lavanderia
Garagem coberta
Estrutura muito boa, dentro das normas
Materiais de alta qualidade
Porcelanato
Casa inteira na laje com rebaixamento em gesso
Jardim
Portas e janelas e portao em aluminio
Mão de obra de qualidade, exatamente para você não ter incomodo.
Terreno 240m²
VALOR R$780.000,00
ACEITA FINANCIAMENTO
FGTS COMO PARTE DA ENTRADA
Jardim Europa
Quadra 04
Lote 03